El Gobierno no ve afecciones al medio ambiente en la planta de tratamiento de RCDs proyectada en Castro Urdiales

El Gobierno de Cantabria ha determinado que el proyecto para crear una planta de tratamiento de residuos de construcción y demolición (RCDs) en el polígono industrial de El Vallegón, en Sámano (Castro Urdiales), promovido por Reciclados Incera SL, "previsiblemente, no producirá efectos adversos significativos sobre el medio ambiente" ni implicará una pérdida relevante "de valores ambientales, paisajísticos y arqueológicos".

Así lo señala la Dirección General de Medio Ambiente del Ejecutivo regional en el informe de impacto ambiental formulado en relación a este proyecto, publicado este jueves en el Boletín Oficial de Cantabria (BOC).

Este departamento "no considera necesario" someter el proyecto a la tramitación de evaluación de impacto ambiental ordinaria "siempre que se incorporen al proyecto definitivo y se cumplan las medidas condicionantes ambientales y el Plan de Vigilancia Ambiental propuestos por el promotor en el documento ambiental y el resto de medidas y condicionantes adicionales incluidos en el informe de impacto ambiental.

Fuentes de la Consejería del ramo han explicado a Europa Press que todavía falta al proyecto otro trámite ambiental para estar autorizado definitivamente.

Según se explica en el informe, el proyecto tiene el objetivo de fomentar la reutilización, reciclado y otras formas de valorización de RCDs, asegurando que los destinos de operaciones de eliminación reciban un tratamiento adecuado.

Asimismo, se indica que "otro valor de referencia de este proyecto es la erradicación del vertido incontrolado de RCDs" en Cantabria.

La actuación persigue la obtención de beneficios medioambientales por la optimización de los recursos presentes en los residuos y la disminución de los efectos ambientales que produce tanto el vertido de los residuos como los derivados de su gestión, como son el consumo de energía y las emisiones de dióxido de carbono.

En esta planta de RCDs --hormigón, pétreos-áridos, ladrillos, etc.-- se seleccionarán, clasificarán y valorizarán las diferentes fracciones que contienen este tipo de materiales, a fin de obtener productos aptos para su utilización directa, como los áridos que cumplan las especificaciones como materiales de construcción, o residuos cuyo destino será otro tratamiento posterior de valorización o reciclado, y si éste último no fuera posible, se eliminarán en vertedero.

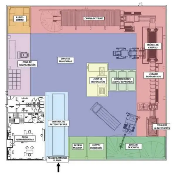
La actuación se desarrollará completamente en el interior de una nave industrial de planta rectangular y cubierta a dos aguas, con zona diáfana interior donde se desarrollen las actividades de tratamiento y otra zona compartimentada en tres plantas destinada a uso administrativo, aseos y vestuarios de los trabajadores.

La zona de tratamiento de RCDs ocupa una superficie aproximada de 1.486,50 metros cuadrados, sobre el total de la nave, de 1.690 m2. La zona administrativa ocupará 168,5 m2.

Los materiales a tratar procederán fundamentalmente de las obras de construcción y demolición de edificios, viviendas y obra civil, así como de obras de rehabilitación y reforma de éstas.

Y las salidas principales son áridos que se destinarán a la restauración, acondicionamiento o relleno de obras. La actividad de la Planta se desarrollará en el interior de la nave proyectada.